Navigation überspringen
Start
Team + Raum
Projekte
Werkzeuge
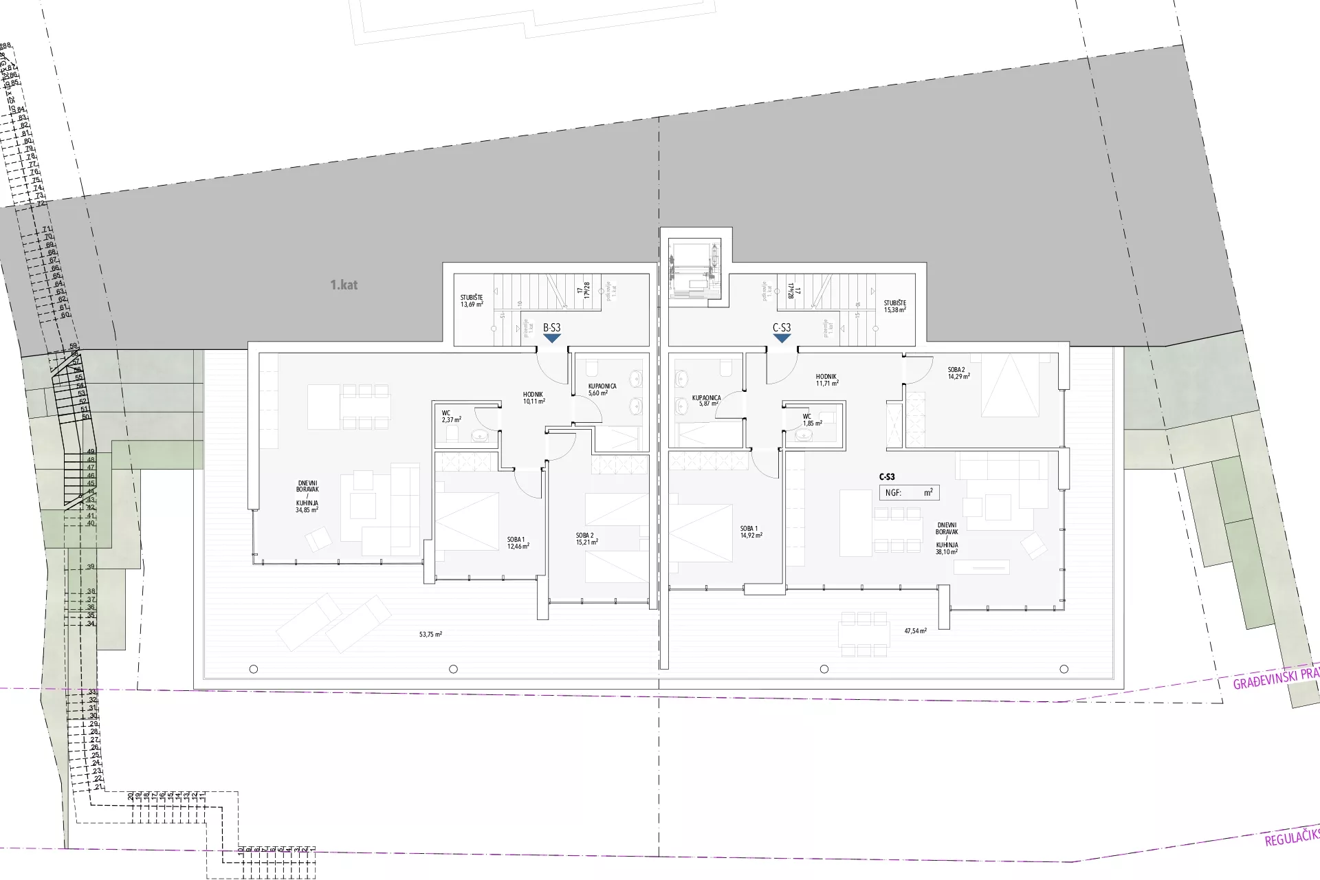
Apartmenthaus
Dubrovnik, Kroatien
Zum nächsten Bild
Projekt Details
Typologie
Apartmenthaus
Lage
Dubrovnik, Kroatien
Jahr
2026
Größe
11 Wohneinheiten
Bauherr
Privat
Leistungsphasen
1–4
Navigation überspringen
Start
Team + Raum
Projekte
Werkzeuge
Impressum
Datenschutz